Centre de formation et recherche
Bâtiment énergie

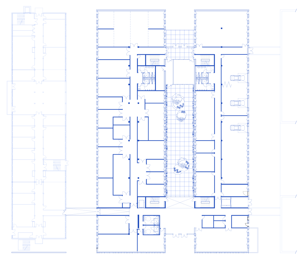
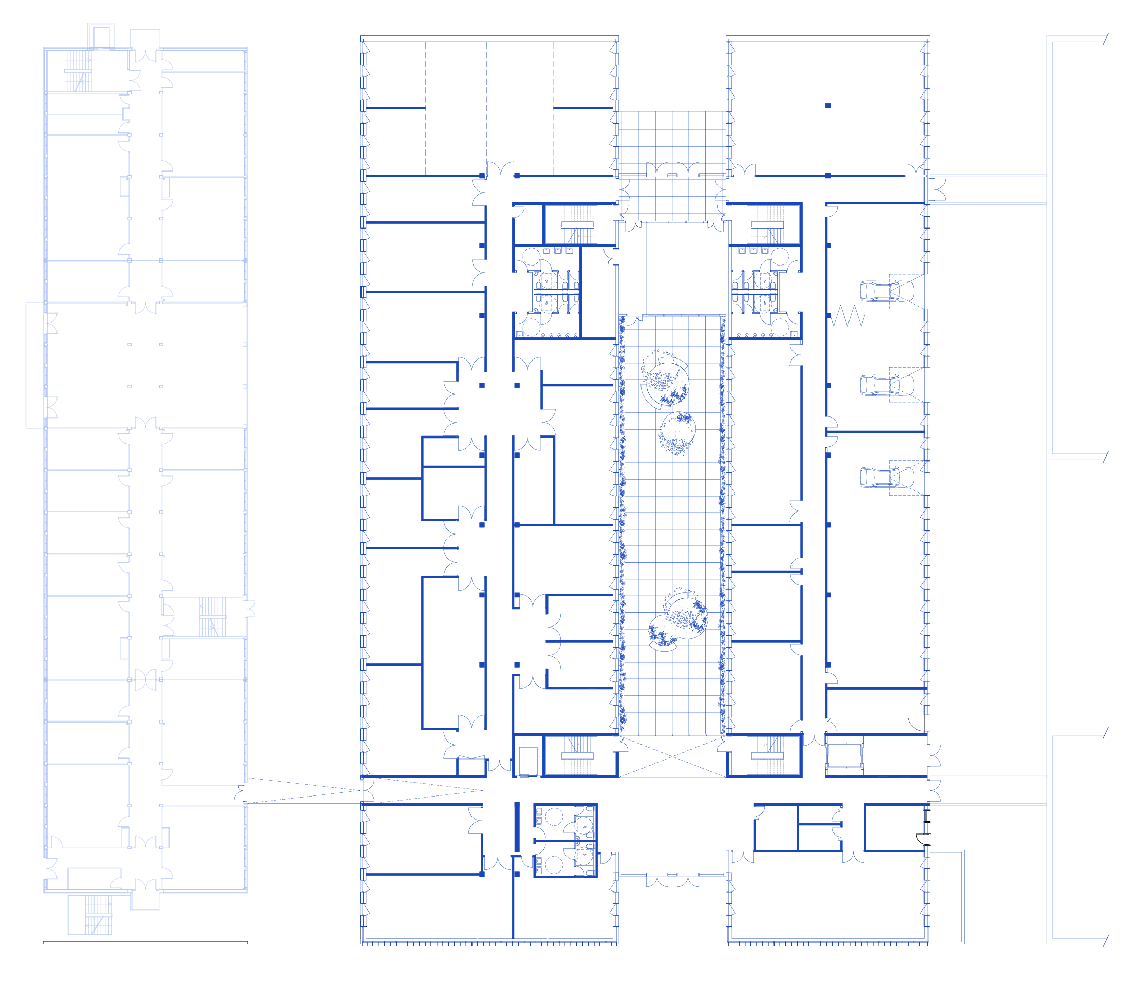
La construction du Bâtiment Energie a pour objectif de rassembler sur un même lieu la formation et la recherche dans le cadre de l’Eco-campus de Belfort. Ce projet et son programme est l’aboutissement de la volonté de trois entités : l’Université de Franche-Comté, l’Université de Technologie de Belfort-Montbéliard, et l’Institut de Recherche FEMTO-ST. Le parti architectural est multidimensionnel, il s’articule autour de quatre enjeux majeurs : le plan urbain, l’identité commune, l’organisation du programme, et la durabilité de la construction.



Programmes
Enseignement
L’agence Ronald Sirio Architectes mène une réflexion sur les lieux d’apprentissage à des échelles multiples, de la petite enfance aux campus universitaires. Dans ces lieux de transmission de connaissances, véritables incubateurs des générations futures, nous portons une attention particulière à l’interaction dynamique entre l’architecture et ses occupants. Nous concevons des espaces évolutifs, sains, sécurisés et aux colorimétries adaptées favorisant l’innovation et les échanges. Les projets développés, en interaction avec leur environnement, permettent l’étude et l’apprentissage de l’utilisateur.
Orientations
Anthropos
Pour son équilibre psychique et physique, l’être humain a besoin d’être en relation avec la nature et le naturel. S’ils ne peuvent pas tout résoudre, l’architecture et l’urbanisme ont néanmoins leur part dans une dynamique de pacification et de bien-être. La présence d’arbres sur un site, l’art de capter la lumière naturelle, la fluidité de la relation intérieur/extérieur, le souffle d’un regard qui porte loin, un rapport modéré à la densité et à l’intensification sont des éléments fondamentaux de l’approche de l’architecture et de l’aménagement par l’agence.