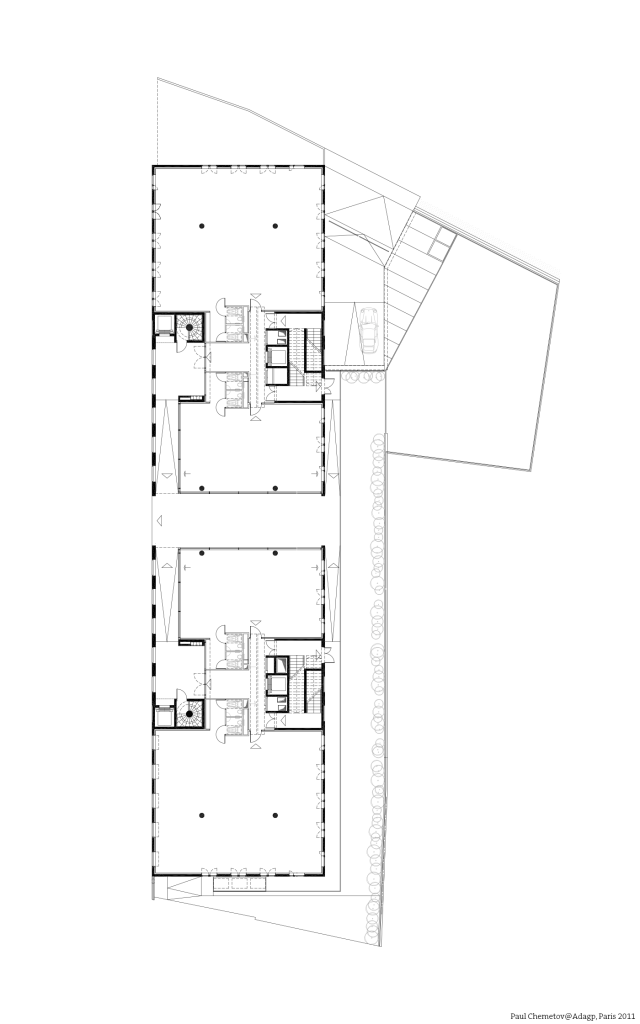
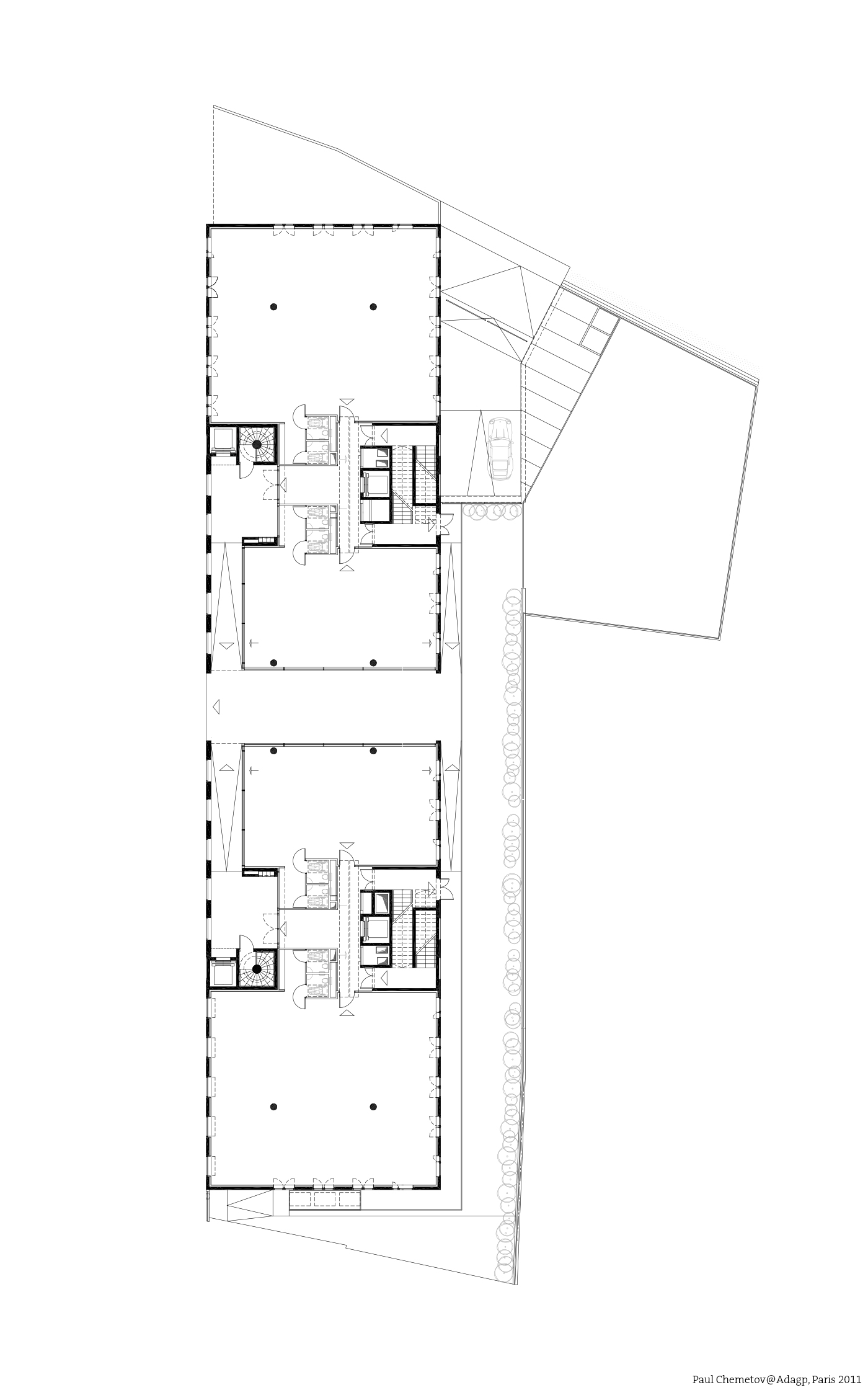
Résidence et espaces de travail
Reims, France

Ces deux bâtiments jumeaux de bureaux se situent à proximité de la mairie de Montreuil, dans la ZAC aux règles atypiques conçue par Àlvaro Siza. Ils paraissent au premier abord d’une grande sobriété : des façades de type grille en béton préfabriqué, conservé dans sa teinte naturelle, de grandes fenêtres. Cependant, un évasement des percements, de 7 centimètres à chaque étage, introduit une dynamique inattendue. Ce principe se retrouve également au niveau des poteaux : le principe est d’ôter de la matière dans les parties pleines en progressant vers le ciel – ce qui permet d’agrandir la partie vitrée.
Une faille transversale, imposée par le règlement Siza, met également face-à-face deux murs rideaux transparents. Leur proximité et le vis-à-vis créé insufflent de l’espace public dans l’espace privé. Si le jeu sur l’évasement est un clin d’œil aux constructeurs, en allant à contre-courant des règles millénaires, la faille rêve que des amoureux puissent se voir d’un bâtiment à l’autre… D’autant que, dans les espaces intérieurs, les plateaux libres organisés autour d’un noyau compact autorisent une grande flexibilité.






Les bâtiments se doivent d’être solidement construits pour se patiner plutôt que de se dégrader en vieillissant. Dans le même temps, leurs aménagements et partitions intérieures ont besoin de pouvoir évoluer simplement. La structure des poteaux-dalles des bâtiments construits par Ronald Sirio Architectes permet ces transformations avec sobriété. Il en va de même pour la ville : l’histoire dans la longue durée montre son remodèlement incessant. L’approche urbaine de Ronald Sirio Architectes s’attache à en créer les conditions.
L’agence Ronald Sirio Architectes imagine des programmes tertiaires à dimension humaine, et veille au bien-être des futurs utilisateurs, tout en garantissant aux maîtres d’ouvrage des édifices flexibles à coûts raisonnés. L’agence propose des architectures ouvertes et des constructions respectueuses de leur environnement. Un soin particulier est apporté au choix des matériaux intérieurs et extérieurs ainsi qu’à la composition des espaces, afin d’ouvrir les champs de la créativité et favoriser l’appropriation du lieu de travail par l’usager.