Ecole Normale Supérieure de Lyon
Lyon, France

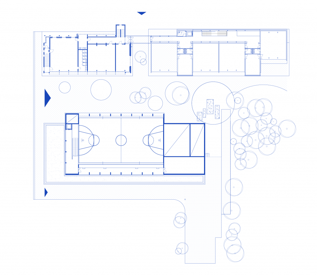
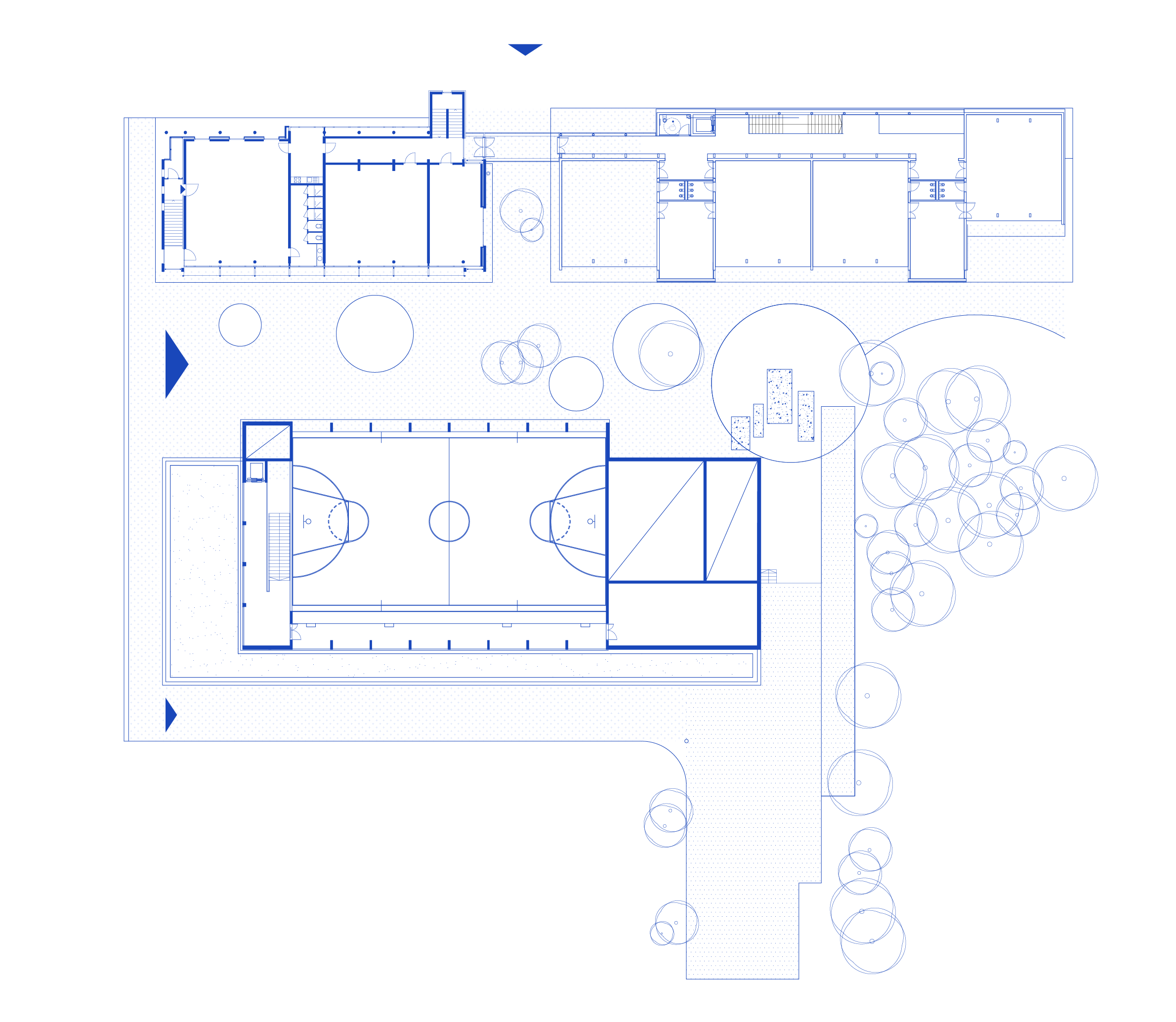
Le projet d’agrandissement de l’école s’appuie sur la composition paysagère et urbaine de Gletterens : il identifie un «axe vert» Est-Ouest, parallèle à la rive du lac, comme le prolongement du bois à l’intérieur de la parcelle, puis un «axe minéral» de cheminements Nord-Sud. Les masses bâties du bâtiment existant de l’école, du nouveau bâtiment scolaire dans son prolongement et de la salle polyvalente en face identifient une cour intérieure ouverte, sans frontières, mais qui ne se noie pas pour autant dans l’échelle du territoire..




L’agence Ronald Sirio Architectes mène une réflexion sur les lieux d’apprentissage à des échelles multiples, de la petite enfance aux campus universitaires. Dans ces lieux de transmission de connaissances, véritables incubateurs des générations futures, nous portons une attention particulière à l’interaction dynamique entre l’architecture et ses occupants. Nous concevons des espaces évolutifs, sains, sécurisés et aux colorimétries adaptées favorisant l’innovation et les échanges. Les projets développés, en interaction avec leur environnement, permettent l’étude et l’apprentissage de l’utilisateur.
Le Mouvement moderne a impulsé le culte de la nouveauté. Opérer une rupture était nécessaire au début du XXe siècle, avec l’apparition de matériaux nouveaux, comme le béton, ainsi que de nouvelles techniques de construction. Ronald Sirio Architectes est l’héritier critique de ces évolutions, autant que de la pensée sur la ville développée par les intellectuels italiens des années 1970. C’est à partir de cette vision pacifiée de l’histoire que l’agence aborde les projets de transformation de l’existant, qu’il s’agisse de l’urbanisme et du bâti de la Reconstruction, ou encore du patrimoine plus récent.