Opération Campus
Bordeaux, France

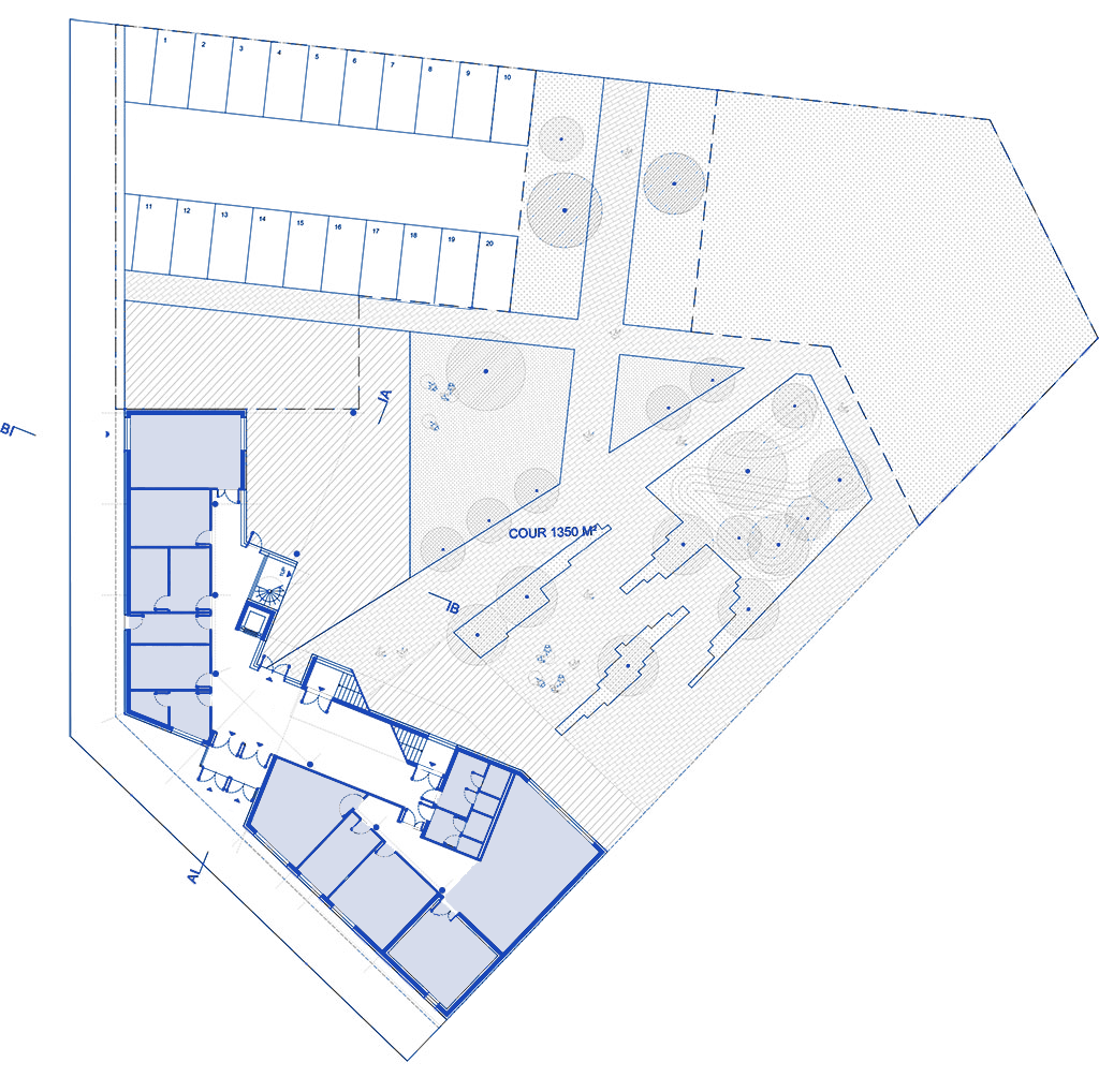
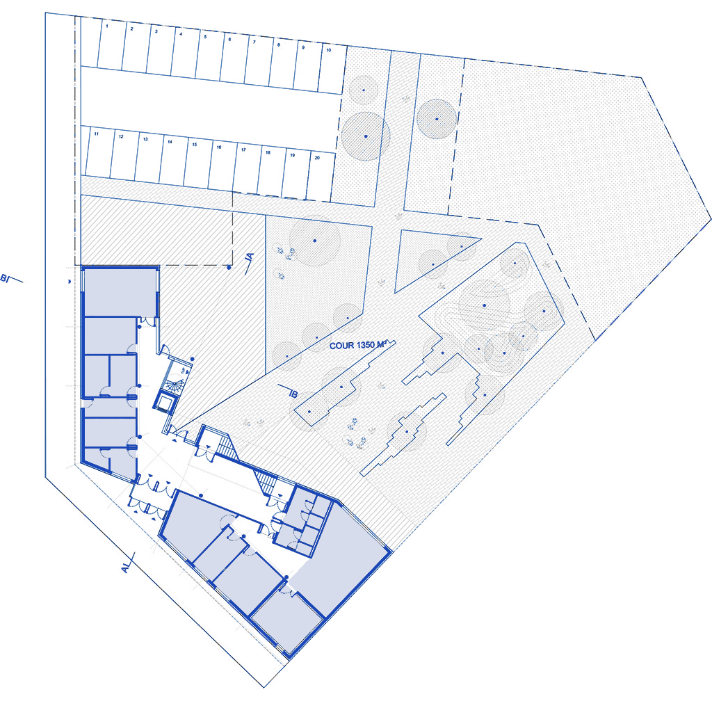
La ville de Blois s’appuie sur son patrimoine remarquable pour construire le futur. Le projet de la ZAC Saint Vincent-Gare-Médicis, et plus particulièrement le quartier de la Gare et celui de l’INSA, s’inscrit dans ce processus.
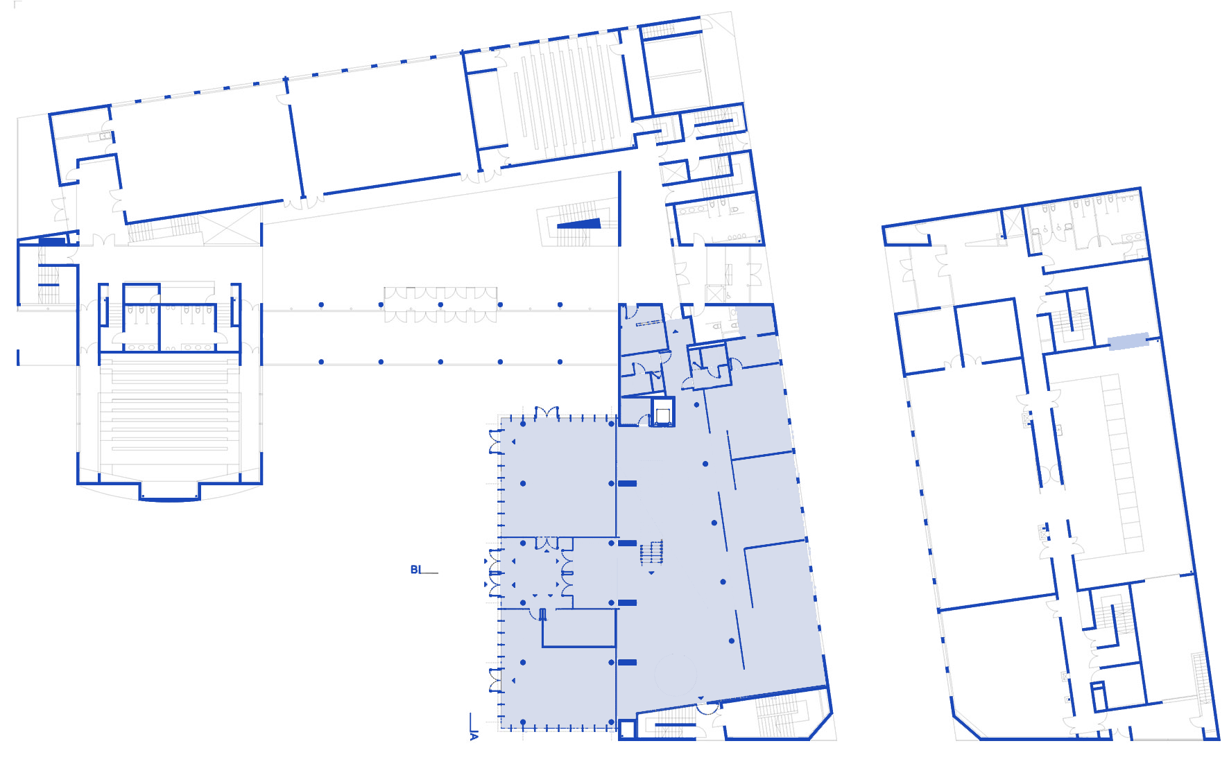
Un nouveau bâtiment est implanté sur le parvis de la gare. Il accueille de grands espaces d’enseignement, comme les salles de Travaux Dirigés ou les salles d’informatique, ainsi que des lieux plus spécifiquement consacrés à la vie étudiante, comme une salle de musique, des bureaux associatifs et un atelier dédié à la mécanique. Le projet prévoit aussi la réhabilitation et l’extension du bâti existant, afin de compléter, réorganiser et rendre plus ergonomiques les espaces actuels. Un Learning Center viendra en extension du bâtiment principal, situé côté parvis. Il constituera un outil d’apprentissage ouvert aux étudiants et au monde.





L’agence Ronald Sirio Architectes mène une réflexion sur les lieux d’apprentissage à des échelles multiples, de la petite enfance aux campus universitaires. Dans ces lieux de transmission de connaissances, véritables incubateurs des générations futures, nous portons une attention particulière à l’interaction dynamique entre l’architecture et ses occupants. Nous concevons des espaces évolutifs, sains, sécurisés et aux colorimétries adaptées favorisant l’innovation et les échanges. Les projets développés, en interaction avec leur environnement, permettent l’étude et l’apprentissage de l’utilisateur.
Le Mouvement moderne a impulsé le culte de la nouveauté. Opérer une rupture était nécessaire au début du XXe siècle, avec l’apparition de matériaux nouveaux, comme le béton, ainsi que de nouvelles techniques de construction. Ronald Sirio Architectes est l’héritier critique de ces évolutions, autant que de la pensée sur la ville développée par les intellectuels italiens des années 1970. C’est à partir de cette vision pacifiée de l’histoire que l’agence aborde les projets de transformation de l’existant, qu’il s’agisse de l’urbanisme et du bâti de la Reconstruction, ou encore du patrimoine plus récent.